zurück zur Liste

Gedenkstätte Ahlem, Hannover-Ahlem

Beschreibung

 

Die Gedenkstätte Ahlem ist ein zentraler Erinnerungsort in Niedersachsen. Seit 1987 erinnert eine Ausstellung im Keller- und Erdgeschoss des denkmalgeschützten Direktorenhauses der Gedenkstätte Ahlem an die bewegte Vergangenheit der ehemaligen Israelitischen Gartenbaumschule: Fast 40 Jahre wurden jüdische Jungen und Mädchen in Handwerksberufen ausgebildet, dann kamen die Nazis und missbrauchten den Ort als Sammelstelle für Deportationen. Für 2500 Menschen wurde Ahlem so zu einer Station in den Tod. Unzählige weitere Menschen, darunter Zwangsarbeiter, politische Häftlinge sowie Sinti und Roma, wurden in dem „Polizei-Ersatzgefängnis" Opfer von Willkür und Folter.

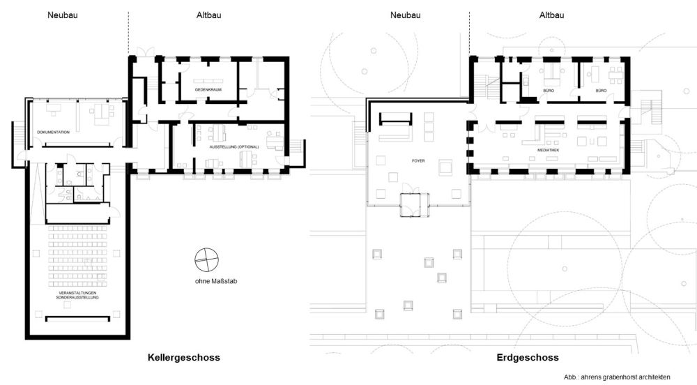
Um der historischen Bedeutung des Erinnerungsortes gerecht zu werden, wurde die Gedenkstätte zu einem zentralen Bildungs- und Gedenkzentrum ausgebaut. Dafür errichteten ahrens grabenhorst architekten ein neues Eingangsgebäude im Passivhausstandard mit einem gläsernen Foyer, das einen Sichtbezug zur neugestalteten Außenanlage herstellt. Diese nimmt in ihrer Gestaltung Bezug auf den vormaligen Schulgarten. Ein Weg parallel zur angrenzenden Heisterbergallee wird die unterschiedlichen Bereiche der Dokumentationsstätte miteinander verbinden.

Für die neue Dauerausstellung und ihre Lernumgebung wird erstmalig das gesamte Direktorenhaus genutzt. Die Modernisierung des Gebäudeteils erfolgte mit Passivhauskomponenten. Im Untergeschoss wird eine Ausstellung die gesamte Geschichte der Gedenkstätte dokumentieren, während eine Bibliothek und eine Mediathek im Erdgeschoss zentrale Informationsstationen bieten. Im ersten Obergeschoss informiert ein Ausstellungsbereich über Ausgrenzung und Verfolgung in der Region Hannover. Im Stockwerk darüber rücken Leben und Arbeit in der Jüdischen Gartenbauschule in den Fokus und unter dem Dach werden modern ausgestattete Seminarräume Platz finden. (Quelle: ahrens grabenhorst architekten)

Die Beteiligten

Bauherr:

Region Hannover

ikon ausstellungen

chora blau (Landschaftsplanung)

Entwurf und Planung:

ahrens grabenhorst architekten

ikon ausstellungen

chora blau (Landschaftsplanung)

Altbau: Wilfried Walther, Springe &  energydesign, Braunschweig

Energieplanung und Qualitätssicherung:

Neubau: energydesign, Braunschweig

Altbau: Wilfried Walther, Springe & energydesign, Braunschweig

Gebäudedaten

Gebäudetyp:

Museumsgebäude

Standort:

Hannover-Ahlem

Baujahr:

2013-2014

Energiebezugsfläche (nach PHPP):

Neubau: 390 m2

Altbau: 830 m2

Kennwerte nach Passivhaus-Projektierung

Heizwärmebedarf:

Neubau: 15 kWh/(m2a)

Altbau: 52 kWh/(m2a)

Primärenergiebedarf für Heizung, Kühlung, Warmwasser, Gesamtstrom inkl. Beleuchtung:

Neubau: 94 kWh/(m2a)

Altbau: 122 kWh/(m2a)

Luftdichtheit:

Neubau: n50 = 0,6 h-1 *

Altbau: n50 = 1,8 h-1 *

*) Werte projektiert, noch nicht abschließend gemessen

Gebäudehülle Neubau

AUSSENWAND:

 

Vorhangfassade aus Stahlbeton Fertigteilen, 180mm Resolhartschaum-Dämmung
WLS 022, U = 0,135 W/(m²·K)
Gegen Erdreich: 300 mm Perimeterdämmung WLS 038, U = 0,123 W/(m²·K)

FENSTER/OBERLICHTER:

 

Pfosten-Riegel-FassadeUf = 0,85 W/(m²·K), 3-fach VerglasungUg = 0,70 W/(m²·K),
g = 0,60 (Standard),Aluminium-Sandwich Paneele mit 140 mm Dämmkern
Up = 0,24 W/(m²·K), UW= 0,75 W/(m²·K);
Oberlichter:Alu-Pfosten-Aufsatz-Konstruktion mit Kipp-Oberlicht-Einspannelement, 3-fach Isolier- und Sicherheitsverglasung UW= 0,95 W/(m²·K)

DACH:

 

Über Kellergeschoss: begehbare Betonplatten aufØ 60 mm Gefälledämmung WLS 038
zzgl. 43 mm
Vakuum-Isolierpaneele WLS 007, U = 0,124 W/(m²·K)

ÜberErdgeschoss: Gründach mit Ø 110 mm Gefälledämmung WLS 038, 260 mm Zwischensparrendämmung Mineralwolle WLS 035, U= 0,134 W/(m²·K)

BODENPLATTE:

 

240 mm Perimeterdämmung WLS038, 60 mmTrittschalldämmungWLS035, U = 0,134 W/(m²·K)

SOMMERLICHER WÄRMESCHUTZ:

 

Teilweise Sonnenschutzverglasung mit g = 0,36, ohne außenliegenden Sonnenschutz

Gebäudehülle Altbau

AUSSENWAND:

 

Vollklinker mit innenseitiger 100 mm Mineraldämmplatte WLS 045 (Regelaufbau),

Ø U = 0,335 W/(m²·K) ; Im Treppenhaus: 20 mm kaschierte XPS-Platte WLS 032

FENSTER:

 

Holzfenster in Abstimmung mit Denkmalschutz Uf = 0,95 W/(m²·K), Ug= 0,70 W/(m²·K),
g =
0,60 (Standard); Ø UW= 0,97 W/(m²·K)

DACH:

180 mm Zwischensparrendämmung Mineralwolle WLS 035,60 mm Untersparrendämmung WLS 035, U = 0,335 W/(m²·K)

BODENPLATTE:

 

ohne nachträgliche Dämmung

SOMMERLICHER WÄRMESCHUTZ:

 

Teilweise Sonnenschutzverglasung mit g = 0,34, ohne außenliegenden Sonnenschutz

Gebäudetechnik Neubau/Altbau

LÜFTUNG Neubau:

 

Zentrale Lüftungsanlage, 2500 m³/h,

Temperaturänderungsgrad DIN EN 308 = 94%

eff. Wärmebereitstellungsgrad PHI = 89%

Elektroeffizienz nach PHI = 0,54 Wh/m³

LÜFTNG Altbau:

 

Lüftungsanlagen geschossweise, Ø 750 m³/h

Temperaturänderungsgrad DIN EN 308 = 86%

eff. Wärmebereitstellungsgrad PHI = 84%

Elektroeffizienz nach PHI = 0,29 Wh/m³

HEIZUNG:

 

Fernwärmeanschluss

Neubau: Wärmeübergabe im KG mit Heizkörper, im EG mit Deckenstrahlplatten

Altbau: KG+DG mit Heizkörper, EG+OG Deckenstrahlplatten

KÜHLUNG:

ohne

BELEUCHTUNG:

 

Büro: Präsenz- und tageslichtabhängige Schaltung

Energiesparende Leuchtmittel T5/16-Lampenmit EVG, LED-Spots, LED-Bänder, LED-Notbeleuchtung